Kit Piscine Béton Aspect Bois Rectangulaire 750x324x130cm
Votre achat pour 173.63 €/mois
- 84 mois
Montant du crédit
10999€
+ Intérêt du crédit
3585.92 €
= Montant total dû
14584.92€
(hors assurance facultative) 8.73 %
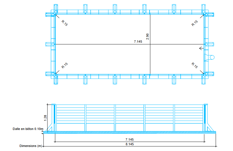
Découvrez la piscine en béton Naturalis R03, aux dimensions généreuses de 750 x 324 x 130 cm, au design rectangulaire et à l’aspect bois teinté. Alliant élégance et robustesse, elle s’intègre parfaitement dans tout type de jardin.
Sa structure solide, entièrement en béton avec des traverses et piliers, est complétée par une margelle en béton teinté et un support intérieur de 4 mm, assurant une stabilité maximale.
Le système de filtration inclus est un skimfiltre de 12 m³/h, associé à une pompe de 3/4 CV pour maintenir une eau cristalline. Une buse de refoulement en ABS assure un flux d’eau constant. Une option de filtration à sable est également disponible, avec un surcoût, pour ceux qui recherchent une solution de filtration alternative.
Le liner 75/100 garantit une étanchéité parfaite, maintenu solidement grâce à un profilé de fixation et un jonc de blocage. Une moquette de sol de 350 g ajoute confort et protection pour une expérience de baignade optimale et durable.
-
Escalier d'angle intérieur 1.28m pour Kit Piscine en Béton Aspect Bois RectangulairePrix Spécial 1 199,00 € Prix normal 1 599,00 €




















