Kit Piscine Béton Aspect Bois Rectangulaire 606x324x143cm
Votre achat pour 167.31 €/mois
- 84 mois
Montant du crédit
10599€
+ Intérêt du crédit
3455.04 €
= Montant total dû
14054.04€
(hors assurance facultative) 8.73 %
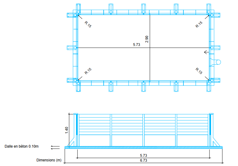
Découvrez la piscine en béton Naturalis, avec ses dimensions de 606 x 324 x 143 cm, au design rectangulaire et à l’aspect bois teinté. Élégante et durable, elle s’intègre harmonieusement dans tout type de jardin.
Sa structure en béton, incluant des traverses robustes et des piliers, est renforcée par une margelle en béton teinté ainsi qu'un support intérieur de 4 mm pour une stabilité optimale.
Le système de filtration standard est un skimfiltre de 12 m³/h avec une pompe de 3/4 CV pour garantir une eau limpide. Une buse de refoulement en ABS assure un flux constant. Une option de filtration à sable est également disponible avec un surcoût pour ceux qui préfèrent une solution de filtration alternative.
Le liner 75/100 assure une parfaite étanchéité, fixé solidement grâce à un profilé de fixation et un jonc de blocage. Une moquette de sol de 350 g est incluse pour un confort et une protection supplémentaires, créant ainsi un espace de baignade agréable et durable.
-
Escalier d'angle intérieur 1.40m pour Kit Piscine en Béton Aspect Bois RectangulairePrix Spécial 1 699,00 € Prix normal 2 299,00 €




















