Kit Piscine Béton Aspect Bois Rectangulaire 467x324x143cm
Votre achat pour 142.06 €/mois
- 84 mois
Montant du crédit
8999€
+ Intérêt du crédit
2934.04 €
= Montant total dû
11933.04€
(hors assurance facultative) 8.73 %
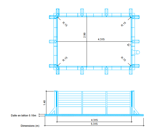
Découvrez la piscine en béton Naturalis, avec des dimensions de 467 x 324 x 143 cm, un design rectangulaire et un élégant aspect bois teinté. Alliant esthétique et robustesse, elle s'intègre harmonieusement dans tout type de jardin.
Sa structure en béton, renforcée par des traverses solides et des piliers, est complétée par une margelle en béton teinté et un support intérieur de 4 mm, assurant une stabilité maximale.
Le système de filtration standard comprend un skimfiltre de 12 m³/h et une pompe de 3/4 CV, garantissant une eau limpide. Une buse de refoulement en ABS assure un flux constant. Une option de filtration à sable est également disponible avec un surcoût pour ceux qui recherchent une alternative.
Le liner 75/100 assure une parfaite étanchéité, maintenu solidement par un profilé de fixation et un jonc de blocage. Une moquette de sol de 350 g est incluse, offrant un confort et une protection supplémentaires pour un espace de baignade agréable et durable.
-
Escalier d'angle intérieur 1.28m pour Kit Piscine en Béton Aspect Bois RectangulairePrix Spécial 1 199,00 € Prix normal 1 599,00 €




















